Home
Profil
Projekte
Neubau
Umbau
Kommunalbau
wettbewerb
Kontakt
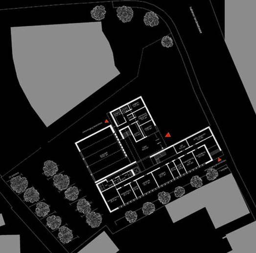
kulturzentrum
oberalm
kulturzentrum oberalm
Zurück zur Übersicht