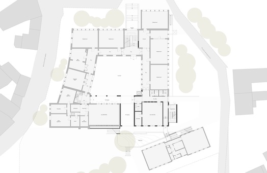
schule alfter-witterschlick


erweiterung und sanierung gemeinschaftsgrundschule alfter-witterschlick (2019-2021)